SF-CMP-1F2N型
| 品番 | SF-CMP-1F2N |
|---|---|
| 種類 | マシンハッチ |
| 蓋材質 | 縞鋼板製 |
| 防水区分 | 防水防臭 |
| 荷重レベル | 歩行用 |
| 規格 | |
| 備考 | 耐火材中蓋付(2時間耐火)、二重蓋式 |
| 注記 | |
| 型式 | 定価 | CAD (DXF) |
CAD (DWG) |
納まり図 | 承認図 | その他 |
|---|---|---|---|---|---|---|
| SF-70CMP-1F2N | 別途見積り |
|
|
|
|
|
| SF-90CMP-1F2N | 別途見積り |
|
|
|
|
|
| SF-100CMP-1F2N | 別途見積り |
|
|
|
|
|
| SF-60×120CMP-1F2N | 別途見積り |
|
|
|
|
|
| SF-90×150CMP-1F2N | 別途見積り |
|
|
|
|
|
| SF-100×200CMP-1F2N | 別途見積り |
|
|
|
|
製品説明
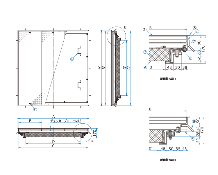
外形寸法図・部品名称表

型式寸法表
| 型式 | D×D' | A×A' | B×B' | C×C' | 蓋枚数 | 蓋1枚kg | 耐火材中蓋kg | 合計重量kg |
|---|---|---|---|---|---|---|---|---|
| SF-70CMP-1F2N | 700×700 | 990×1070 | 478×1038 | 972×1052 | 2 | 25 | 50 | 148 |
| SF-90CMP-1F2N | 900×900 | 1190×1270 | 578×1238 | 1172×1252 | 2 | 34 | 72 | 198 |
| SF-100CMP-1F2N | 1000×1000 | 1290×1370 | 418×1338 | 1272×1352 | 3 | 28 | 84 | 232 |
| SF-60×120CMP-1F2N | 1200×600 | 1490×970 | 485×938 | 1472×952 | 3 | 23 | 68 | 195 |
| SF-90×150CMP-1F2N | 1500×900 | 1790×1270 | 438×1238 | 1772×1252 | 4 | 27 | 108 | 289 |
| SF-100×200CMP-1F2N | 2000×1000 | 2290×1370 | 450×1338 | 2272×1352 | 5 | 30 | 148 | 386 |
部品名称表
| 番号 | 部品名称 | 材質 | 表面処理・備考 |
|---|---|---|---|
| ① | 蓋 | SS400 | 防錆塗装 |
| ② | 受枠 | SEHC | 防錆塗装 |
| ③ | 耐火材中蓋 | 高温断熱ウール | |
| ④ | 保護カバー | SEHC | 防錆塗装 |
| ⑤ | 目地 | SUS304 | ヘアライン仕上 |
| ⑥ | パッキング | CR | |
| ⑦ | ボルト・ナット | SUS304 | M10 |
| ⑧ | アンカー | SS400 | 防錆塗装 |
| ⑨ | 水抜き用ソケット | SUS304 | 20A(内ねじソケット) |
| ⑩ | 中蓋把手 | SUS304 | |
| ⑪ | 保護キャップ | EPDM | No.H |
開閉用具
| 画像 | 品番 | 名称 | 定価 | 承認図 | 備考 |
|---|---|---|---|---|---|
![]() |
No.10-17型 | 六角ボックス(17mm・M10) | 2,900円 | (別売) | |
![]() |
No.24型 | T形開閉ハンドル | 7,500円 | (別売) | |
![]() |
No.H型 | 保護キャップ | 700円 |
大阪本社
TEL
06-6541-2924(代)
東京支店
TEL
03-3831-2646(代)
中部営業所
TEL
059-364-2631(代)
九州営業所
TEL
0942-87-2924(代)




マンホールカバー
フロアハッチ、マシンハッチ
タラップ、丸環
グレーチング
ピットカバー
ルーフドレイン
上水道用ボックス
排水器具
阻集器(Gトラップ等)・吊会所桝
グリーンメイト(樹木保護蓋)
グリーンホルダー(樹木保護支柱)
車止め
ライナーエッジ