G10-GPC-TS型
| 品番 | G10-GPC-TS |
|---|---|
| 種類 | 化粧用側溝 |
| 蓋材質 | ステンレス製 |
| 用途 | 集水桝用 |
| 蓋主材 | フラットバー |
| 荷重レベル | レベルD T-14 (14t敷地内) |
| 規格 | |
| 備考 | 境界型、ストレート、ステンレス製蓋、T-14 |
| 注記 | ・定価は、蓋、受枠共の金額です。 |
| 型式 | 定価 | 内 蓋定価 | 内 枠定価 | CAD (DXF) |
CAD (DWG) |
納まり図 | 承認図 | その他 |
|---|---|---|---|---|---|---|---|---|
| G10-30GPC-TS | 82,900円 | 53,600円 | 29,300円 |
|
|
|
|
|
| G10-45GPC-TS | 122,000円 | 83,600円 | 38,400円 |
|
|
|
|
|
| G10-60GPC-TS | 168,200円 | 120,900円 | 47,300円 |
|
|
|
|
製品説明
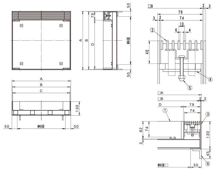
外形寸法図・部品名称表

型式寸法表〔単位mm〕
| 型式 | 桝径 | A | B | C | D | 蓋kg | 合計重量kg | 充填時蓋kg |
|---|---|---|---|---|---|---|---|---|
| G10-30GPC-TS | 300 | 400 | 390 | 384 | 308 | 14.9 | 20.9 | 39.8 |
| G10-45GPC-TS | 450 | 550 | 540 | 534 | 458 | 22.5 | 30.8 | 69.9 |
| G10-60GPC-TS | 600 | 700 | 690 | 684 | 608 | 31.6 | 42.2 | 108.7 |
部品名称表
| 番号 | 部品名称 | 材質 | 表面処理・備考 |
|---|---|---|---|
| ① | 蓋 | SUS304 | |
| ② | グレーチング | SUS304 | |
| ③ | 受枠 | SUS304 | |
| ④ | 固定金具 | SUS304 | |
| ⑤ | 締付ボルト | SUS304 | |
| ⑥ | アンカー | SUS304 |
開閉用具
| 画像 | 品番 | 名称 | 定価 | 承認図 | 備考 |
|---|---|---|---|---|---|
![]() |
No.34型 | 開閉ハンドル | 4,400円 | (別売) |
大阪本社
TEL
06-6541-2924(代)
東京支店
TEL
03-3831-2646(代)
中部営業所
TEL
059-364-2631(代)
九州営業所
TEL
0942-87-2924(代)


マンホールカバー
フロアハッチ、マシンハッチ
タラップ、丸環
グレーチング
ピットカバー
ルーフドレイン
上水道用ボックス
排水器具
阻集器(Gトラップ等)・吊会所桝
グリーンメイト(樹木保護蓋)
グリーンホルダー(樹木保護支柱)
車止め
ライナーエッジ